6 locali in vendita

Firenze, Appartamento Viale dei Cadorna - Statuto
€ 690.000
Prezzo aggiornato
6 locali 6 locali
205 Mq 205 Mq
2 bagni 2 bagni

6 locali in vendita

Firenze, Appartamento Viale dei Cadorna - Statuto

Descrizione annuncio

STATUTO. Viale dei Cadorna.

In palazzo d'epoca a 150 m dalla fermata della tramvia 'Statuto', vicino ad ogni tipo di servizio.

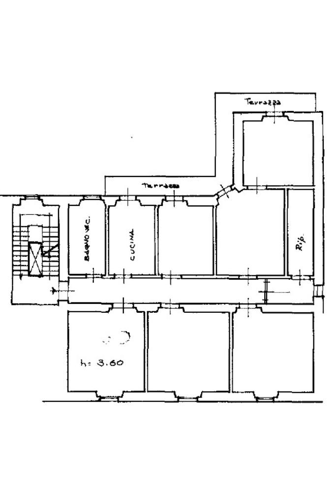
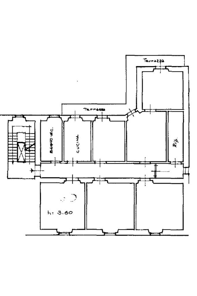
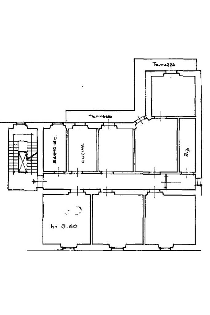
L'appartamento è posto al terzo piano, servito da ascensore e si compone da un ingresso, cucina abitabile, sala, quattro camere matrimoniali, un mezzo vano dotato di porta finestra da poter adibire a lavanderia o guardaroba e doppi servizi, entrambi finestrati.

Le condizioni generali sono ottime, il riscaldamento è autonomo. Unico al piano.

Possibilità di acquistare un garage, attualmente pertinenza dell'abitazione.

Attualmente affittato con regolare contratto a studenti universitari, libero dal 15 ottobre 2026.

Per maggiori informazioni o per visionare l'appartamento può contattarci allo 055480557, scriverci su whatsapp al 3667473844 o mandarci una mail a fice2

Mostra tutto

Nelle vicinanze

Trasporto pubblico Trasporto pubblico
stazione di Firenze Statuto
stazione di Firenze Statuto
100 m
stazione di Firenze Santa Maria Novella
stazione di Firenze Santa Maria Novella
1,0 Km
Statuto
Statuto
140 m
Muratori - Stazione Statuto
Muratori - Stazione Statuto
190 m
Lami T1 Statuto FS
Lami T1 Statuto FS
160 m
Ricariche auto elettriche Ricariche auto elettriche
Eneldrive (ex SILFI) Muratori
120 m
Eneldrive (ex SILFI) Costituzione
250 m
Eneldrive (ex SILFI) Lambruschini
340 m
Eneldrive (ex SILFI) Liceo Dante
520 m
Eneldrive (ex SILFI) Palazzo Bruciato
610 m
Scuole Scuole
Scuole
260 m
Scuola Primaria Guglielmo Marconi
380 m
Liceo Classico e Liceo Musicale "Dante"
510 m
Scuola Secondaria di I Grado "Pieraccini"
690 m
Scuola dell'Infanzia e Primaria "Gianni Rodari"
690 m
Farmacia Farmacia
Farmacia Statuto
90 m
Farmacia
540 m
Zanobini
600 m
S. Caterina
740 m
San Jacopino
820 m
Ospedali Ospedali
Poliambulatorio Morgagni (CUP)
1,4 Km
Unità spinale
1,6 Km
Ospedali
1,6 Km
Centro traumatologico ortopedico - CTO
1,6 Km
C.T.O.
1,6 Km
Supermercati Supermercati
Esselunga
420 m
Penny Market
560 m
Coop
710 m
Carrefour Express
860 m
Conad City
980 m
Negozi Negozi
Negozi
50 m
Opera
90 m
Mercerie
100 m
Pane & Dolci
380 m
Alessandra Maglieria
410 m
Bar Bar
Bar
250 m
OOO
540 m
circolo arci il progresso
620 m
Bar Rullo
680 m
Il Re Gelato
690 m
Ristoranti Ristoranti
Buona Fortuna
60 m
Hokkaido
80 m
Cipiglio
300 m
Pizzeria Spera
360 m
Zerozero Pizzeria
410 m
Mostra tutto

Caratteristiche

Rif.:
61177647
Piano:
3 di 4 con ascensore (Piano alto)
Box:
1
Balconi:
1
Camere da letto:
3
Arredamento:
Assente
Mostra tutto
Prezzo Prezzo
€ 690.000
Prezzo box Prezzo box
€ 80.000
Rata mutuo Rata mutuo
€ 3.252 / mese
Spese annue Spese annue
€ 2.400
Proponi il tuo prezzoProponi il tuo prezzo

Classe Energetica

G
G
G
G
G
G
G
G
G
EP globale non rinnovabile:
133.00 kW h/m² anno
EP globale rinnovabile:
68.20 kW h/m² anno
EP invernale del fabbricato:
EP estiva del fabbricato:
Anno di costruzione:
1930
Riscaldamento:
Autonomo
Tipo impianto:
A radiatori
Tipo alimentazione:
Metano

Prezzo ridotto di €1 (8%%)

Ti interessa visionare l'immobile?

Fissa un appuntamento  Fissa un appuntamento

Richiedi informazioni

Clicca su Leggi per aprire l'informativa
* Questi campi sono obbligatori

Calcola il tuo mutuo

Semplice e senza impegno
Anticipo

( % )
Mutuo

( % )

pochi semplici passi

inserisci i tuoi dati
Questionario completato
Grazie per aver richiesto un appuntamento senza impegno con un nostro Consulente del Credito e Assicurativo.

Hai inserito correttamente tutti i dati necessari e a breve riceverai una e-mail con un link da convalidare per inviare i tuoi dati.
Affiliato
Studio Statuto Sas
Via XX Settembre, 6/r 50129 Firenze (FI)

Il nostro staff


  • Luigi De Santis
    Affiliato

  • Debora Forciniti
    Responsabile

  • Lorena Nocera
    Collaboratrice
Via XX Settembre, 6/r 50129 Firenze (FI)
Zona: Statuto - Fortezza - Libertà
Mostra su mappa
Orari: LUN - VEN 9:00 - 13:00 / 15:30 - 20:00 SABATO 9:00 - 13:00 / 15:30 - 18:00
Affiliato
Studio Statuto Sas
Via XX Settembre, 6/r 50129 Firenze (FI)

2026 Tecnocasa Franchising S.p.A. - P. IVA 08365160152 - Via Monte Bianco 60/A 20089 Rozzano (MI). Ogni agenzia ha un proprio titolare ed è autonoma. Privacy policy | Policy utilizzo | Cookie policy