Quadrilocale in vendita

Firenze, Appartamento Via XX Settembre - Libertà
€ 520.000
Prezzo aggiornato
4 locali 4 locali
106 Mq 106 Mq
2 bagni 2 bagni

Quadrilocale in vendita

Firenze, Appartamento Via XX Settembre - Libertà

Descrizione annuncio

LIBERTA'. Via XX Settembre.

In palazzo d'epoca, vicino ad ogni tipo di servizio con affacci interni e silenziosi.

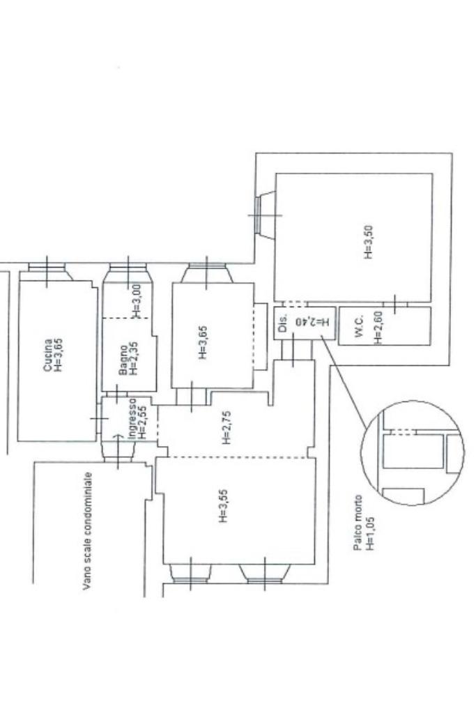
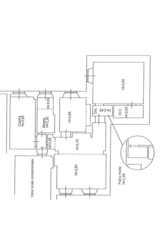
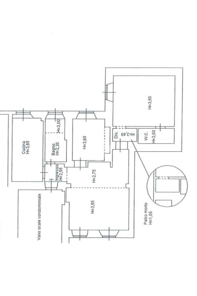
L'appartamento si compone da un ingresso aperto sull'ampia sala, caratterizzata da due punti luce e dotata di armadio a muro. La cucina è abitabile. Le due camere affacciano entrambe sui giardini tergali, garantendo riservatezza e silenzio. I bagni sono due, entrambi completi. Due palchi morti, un ripostiglio ed una cantina/sottoscala posta al piano seminterrato del palazzo completano la proprietà.

Terrazza panoramica e giardino condominiali.

Riscaldamento autonomo, aria condizionata.

Ottime condizioni di manutenzione.

Per maggiori informazioni o per visionare l'immobile può contattarci allo 055480557, mandarci una mail su fice2 o scriverci su whatsapp al 3667473844.

Mostra tutto

Nelle vicinanze

Trasporto pubblico Trasporto pubblico
stazione di Firenze Statuto
stazione di Firenze Statuto
560 m
stazione di Firenze Santa Maria Novella
stazione di Firenze Santa Maria Novella
1,0 Km
Strozzi - Fallaci
Strozzi - Fallaci
340 m
Statuto
Statuto
410 m
Ruffini
Ruffini
80 m
Ricariche auto elettriche Ricariche auto elettriche
Eneldrive (ex SILFI) Liceo Dante
110 m
Eneldrive (ex SILFI) Lavagnini 22
260 m
Eneldrive (ex SILFI) Lupi
260 m
Garage Indipendenza | EnelX
360 m
Eneldrive (ex SILFI) Costituzione
370 m
Scuole Scuole
Liceo Classico e Liceo Musicale "Dante"
80 m
Scuola Secondaria di I Grado "Pieraccini"
320 m
Scuola dell'Infanzia "Battisti"
350 m
Liceo Artistico "Alberti"
580 m
Scuole Pie Fiorentine
610 m
Farmacia Farmacia
S. Caterina
260 m
Farmacia Statuto
460 m
Farmacity
560 m
Zanobini
760 m
Farmacia
850 m
Ospedali Ospedali
Villa Donatello
1,2 Km
Ospedale di Santa Maria Nuova
1,3 Km
Unità spinale
1,8 Km
Poliambulatorio Morgagni (CUP)
1,9 Km
Ospedali
1,9 Km
Supermercati Supermercati
Carrefour Express
410 m
Penny Market
410 m
Supermercati
810 m
Pam
810 m
Esselunga
900 m
Negozi Negozi
Negozi
210 m
GF
450 m
Opera
460 m
Mercerie
470 m
Forno Becagli
500 m
Bar Bar
Bar
350 m
OOO
350 m
Bar Sauro
520 m
Il Re Gelato
540 m
Bar Decò
600 m
Ristoranti Ristoranti
Odissea
190 m
Osir
200 m
Pizzeria Spera
210 m
Aji Tei
230 m
Trattoria da Nasone
280 m
Mostra tutto

Caratteristiche

Rif.:
61128928
Piano:
Basso di 4 con ascensore
Totale piani:
4
Camere da letto:
2
Arredamento:
Parziale
Condizionamento:
Autonomo
Mostra tutto
Prezzo Prezzo
€ 520.000
Rata mutuo Rata mutuo
€ 2.450 / mese
Spese annue Spese annue
€ 720
Proponi il tuo prezzoProponi il tuo prezzo

Classe Energetica

E
E
E
E
E
E
E
E
E
EP globale non rinnovabile:
167.73 kW h/m² anno
EP globale rinnovabile:
74.50 kW h/m² anno
EP invernale del fabbricato:
EP estiva del fabbricato:
Anno di costruzione:
1928
Riscaldamento:
Autonomo
Tipo impianto:
A radiatori
Tipo alimentazione:
Metano

Prezzo ridotto di €1 (6%%)

Ti interessa visionare l'immobile?

Fissa un appuntamento  Fissa un appuntamento

Richiedi informazioni

Clicca su Leggi per aprire l'informativa
* Questi campi sono obbligatori

Calcola il tuo mutuo

Semplice e senza impegno
Anticipo

( % )
Mutuo

( % )

pochi semplici passi

inserisci i tuoi dati
Questionario completato
Grazie per aver richiesto un appuntamento senza impegno con un nostro Consulente del Credito e Assicurativo.

Hai inserito correttamente tutti i dati necessari e a breve riceverai una e-mail con un link da convalidare per inviare i tuoi dati.
Affiliato
Studio Statuto Sas
Via XX Settembre, 6/r 50129 Firenze (FI)

Il nostro staff


  • Luigi De Santis
    Affiliato

  • Debora Forciniti
    Responsabile

  • Lorena Nocera
    Collaboratrice
Via XX Settembre, 6/r 50129 Firenze (FI)
Zona: Statuto - Fortezza - Libertà
Mostra su mappa
Orari: LUN - VEN 9:00 - 13:00 / 15:30 - 20:00 SABATO 9:00 - 13:00 / 15:30 - 18:00
Affiliato
Studio Statuto Sas
Via XX Settembre, 6/r 50129 Firenze (FI)

2026 Tecnocasa Franchising S.p.A. - P. IVA 08365160152 - Via Monte Bianco 60/A 20089 Rozzano (MI). Ogni agenzia ha un proprio titolare ed è autonoma. Privacy policy | Policy utilizzo | Cookie policy